3ПС 84

Чертеж изделия:
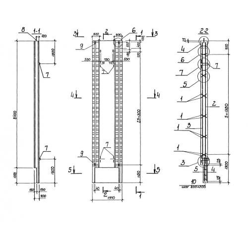
Характеристики изделия:
ПараметрЗначение
длина1970 мм
ширина300 мм
высота9400 мм
вес11300 кг
серия3.902.1-12

3ПС 84 Стеновые панели для способа "стена в грунте" по серии 3.902.1-12.