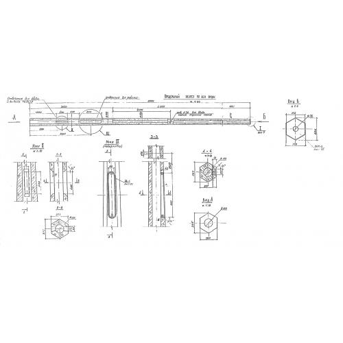
СВ 80

Чертеж изделия:
Характеристики изделия:
ПараметрЗначение
длина8000 мм
ширина320 мм
высота370 мм
вес700 кг
серия3.507 КЛ-10

СВ 80 Стойки вибрированные по серии 3.507 КЛ-10.