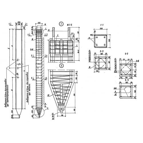
С 8 свая

Чертеж изделия:
Характеристики изделия:
ПараметрЗначение
длина8000 мм
ширина350 мм
высота350 мм
масса2530 кг
нормативный документСерия 3.501.1-130

С 8  Сваи по Серии 3.501.1-130.