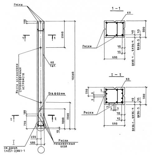
8К 96 колонны
Характеристики изделия:
| Параметр | Значение |
|---|---|
| длина | 10500 мм |
| ширина | 500 мм |
| высота | 600 мм |
| масса | 7900 кг |
| нормативный документ | Серия 1.423.1-3/88 |
Цена:
Рассчитать стоимость8К 96 Колонны Серия 1.423.1-3/88.
| Параметр | Значение |
|---|---|
| длина | 10500 мм |
| ширина | 500 мм |
| высота | 600 мм |
| масса | 7900 кг |
| нормативный документ | Серия 1.423.1-3/88 |
8К 96 Колонны Серия 1.423.1-3/88.
