ПП 18.7 плиты парапетные

Чертеж изделия:
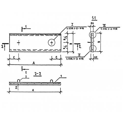
Характеристики изделия:
ПараметрЗначение
длина1790 мм
ширина700 мм
высота80 мм
масса225 кг
нормативный документСерия 1.238.1-2

ПП 18.7  Плиты парапетные Серия 1.238.1-2.