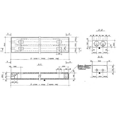
БПК 38.5

Чертеж изделия:
Характеристики изделия:
ПараметрЗначение
длина3800 мм
ширина490 мм
высота220 мм
вес625 кг
серия1.141 КР-1

БПК 38.5 Панель перекрытия без выпускных ребер. Панели перекрытия многопустотные по серии 1.141 КР-1.