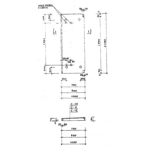
АК 21.8 плиты карнизные

Чертеж изделия:
Характеристики изделия:
ПараметрЗначение
длина2080 мм
ширина750 мм
высота90 мм
масса300 кг
нормативный документСерия 1.138-3

АК 21.8  Плиты карнизные  Серия 1.138-3.