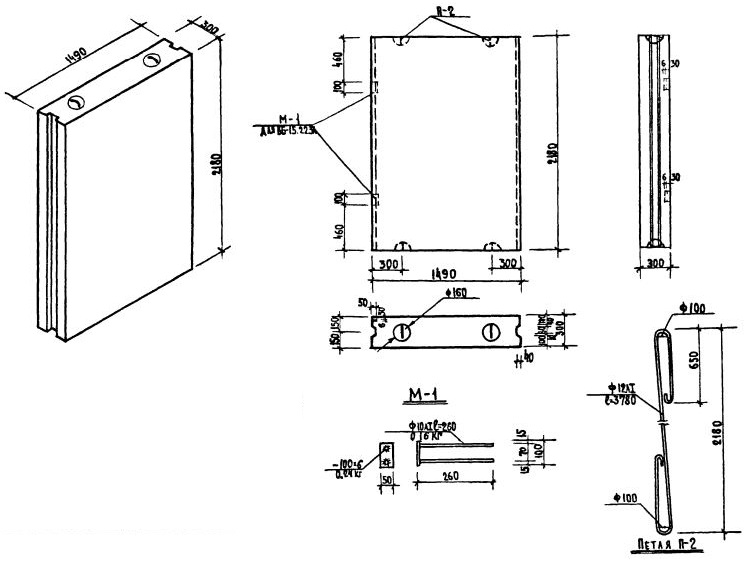
ВБ-15.22.3л

Чертеж изделия:
Характеристики изделия:
ПараметрЗначение
Длина1490 мм
Ширина300 мм
Высота2180 мм
Масса1742 кг
Нормативный документСерия 1.134-1

ВБ-15.22.3л   Блоки внутренних стен вертикальные по Серии 1.134-1.