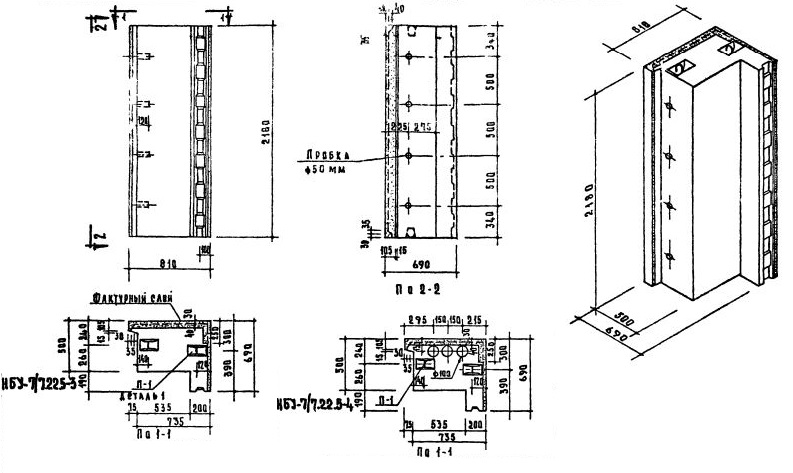
НБУ-7/7.22.5-3

Чертеж изделия:
Характеристики изделия:
ПараметрЗначение
Длина810 мм
Ширина690 мм
Высота2180 мм
Масса1775 кг
Нормативный документСерия 1.133-1

Стеновые легкобетонные блоки толщиной 50 см по Серии 1.133-1.

НБУ-7/7.22.5-3  Простеночный блок температурного шва.