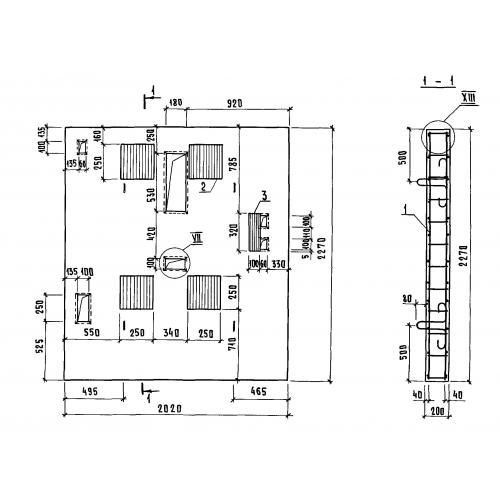
ПЛ 63-20 плита перекрытия шахты лифта

Чертеж изделия:
Характеристики изделия:
ПараметрЗначение
длина2020 мм
ширина2270 мм
высота200 мм
масса2210 кг
нормативный документСерия 1.089.1-1

ПЛ 63-20 Плиты перекрытия шахт лифтов  Серия 1.089.1-1.