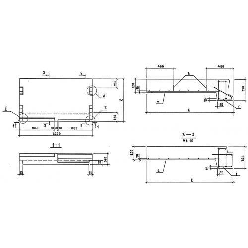
1ЛП 22.13 лестничные площадки плоские

Чертеж изделия:
Характеристики изделия:
ПараметрЗначение
длина2200 мм
ширина1300 мм
высота320 мм
масса1485 кг
нормативный документГОСТ 9818-85

1ЛП 22.13  Лестничные площадки плоские ГОСТ 9818-85.